Porzione di trifamiliare in vendita

Venezia, Via Turcinella - Zelarino
€ 375.000
4 locali 4 locali
126 Mq 126 Mq
2 bagni 2 bagni

Porzione di trifamiliare in vendita

Venezia, Via Turcinella - Zelarino

Descrizione annuncio

Proponiamo in vendita soluzione indipendente di nuova costruzione situata in centro a Zelarino, zona caratterizzata dalla centralità e comodità, infatti, a due passi è possibile raggiungere tutti i servizi che offre il paese come: svariati negozi, istituti scolastici, aree verdi e fermate dei mezzi pubblici comodi al raggiungimento di Mestre, Venezia e paesi limitrofi. Inoltre, a pochi minuti d'auto troviamo la zona commerciale delle 'Porte di Mestre', l'ospedale dell'Angelo e la tangenziale.

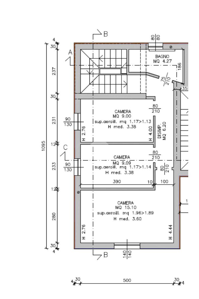
L'abitazione si sviluppa du sue livelli dove al primo piano troviamo: ingresso su ampio soggiorno con cucina open space, disimpegno e bagno finestrato. Il primo piano invece è caratterizzato dalla zona notte con tre camere di cui una matrimoniale e un bagno finestrato.

Completano l'immobile il giardino di circa 250 mq . L'area esterna sarà completata e consegnata con una pompeiana per posteggiare l'auto.

La soluzione è presentata con tutti i confort e caratteristiche moderne, dove è stata posta maggiore attenzione al risparmio energetico, infatti, grazie al cappotto termoisolante, impianti con pompa di calore e impianto fotovoltaico la classe energetica sarà certificata in A4.

Mostra tutto

Nelle vicinanze

Trasporto pubblico Trasporto pubblico
stazione di Venezia Mestre Ospedale
stazione di Venezia Mestre Ospedale
1,9 Km
Zelarino Parolari
Zelarino Parolari
100 m
Tito Castellana
Tito Castellana
270 m
Ricariche auto elettriche Ricariche auto elettriche
Zelarino Munaretto | EnelX
610 m
Trivignano Castellana | EnelX
1,7 Km
EnelX Venezia Negozio Enel
2,3 Km
Mestre Istria | EnelX
2,7 Km
Scuole Scuole
Scuole
1,8 Km
Scuola dell'infanzia paritaria Madonna del Suffragio
2,6 Km
Scuola primaria Ivano Povoledo
2,7 Km
IIS Luigi Luzzatti - sede "Edison Volta"
2,8 Km
Fabio Filzi
2,9 Km
Farmacia Farmacia
Farmacia alla Dogaressa
530 m
Farmacia Pedrina
880 m
Alla Chiesa
1,2 Km
Lloyds farmacia Gobbin
2,6 Km
Farmacia alla Pace
2,8 Km
Ospedali Ospedali
Ospedale dell'Angelo
1,7 Km
Pronto Soccorso Ospedale dell'Angelo
1,8 Km
Supermercati Supermercati
Cadoro
250 m
A &o
1,1 Km
Minimarket
2,0 Km
Auchan
2,0 Km
Coop&Coop
2,0 Km
Negozi Negozi
Cisalfa
2,2 Km
Kiabi
2,2 Km
Panificio al Fortino
2,2 Km
Bar Bar
Bar
270 m
Bar
3,0 Km
Ristoranti Ristoranti
Sotto il Segno
500 m
Ristorando Snc Gastronomia
810 m
L'impronta Gourmet
1,1 Km
Charlie's Pizza
1,1 Km
Agriturismo Casa di Anna
1,5 Km
Mostra tutto

Caratteristiche

Rif.:
61165929
Piano:
Su più livelli di 2
Totale piani:
2
Posti auto:
2
Camere da letto:
3
Arredamento:
Assente
Mostra tutto
Prezzo Prezzo
€ 375.000
Rata mutuo Rata mutuo
€ 1.773 / mese
Spese annue Spese annue
€ 0
Proponi il tuo prezzoProponi il tuo prezzo
Immobile valutato con T·Valuta

Classe Energetica

A4
A4
A4
A4
A4
A4
A4
A4
A4
EP invernale del fabbricato:
EP estiva del fabbricato:
Anno di costruzione:
2025
Riscaldamento:
Autonomo
Tipo impianto:
A pavimento
Tipo alimentazione:
Metano

Ti interessa visionare l'immobile?

Fissa un appuntamento  Fissa un appuntamento

Richiedi informazioni

Clicca su Leggi per aprire l'informativa
* Questi campi sono obbligatori

Calcola il tuo mutuo

Semplice e senza impegno
Anticipo

( % )
Mutuo

( % )

pochi semplici passi

inserisci i tuoi dati
Questionario completato
Grazie per aver richiesto un appuntamento senza impegno con un nostro Consulente del Credito e Assicurativo.

Hai inserito correttamente tutti i dati necessari e a breve riceverai una e-mail con un link da convalidare per inviare i tuoi dati.
Affiliato
Mani Sas
Via Castellana, 66 30174 Venezia (VE)

Il nostro staff


  • Nicolo Grossole
    Affiliato

  • Marco Carminati
    Affiliato

  • Marina De Battista
    Coordinatrice
Via Castellana, 66 30174 Venezia (VE)
Zona: Mestre Zelarino - Trivignano - Favorita
Mostra su mappa
Orari: Dal lunedì al venerdì dalle 9:00 - 12:30 alle 15:00 -19:30 e il sabato mattina dalle 9:00 alle 12:30.
Affiliato
Mani Sas
Via Castellana, 66 30174 Venezia (VE)

2026 Tecnocasa Franchising S.p.A. - P. IVA 08365160152 - Via Monte Bianco 60/A 20089 Rozzano (MI). Ogni agenzia ha un proprio titolare ed è autonoma. Privacy policy | Policy utilizzo | Cookie policy